乐清上班族网

 找回密码
 立即注册
搜索

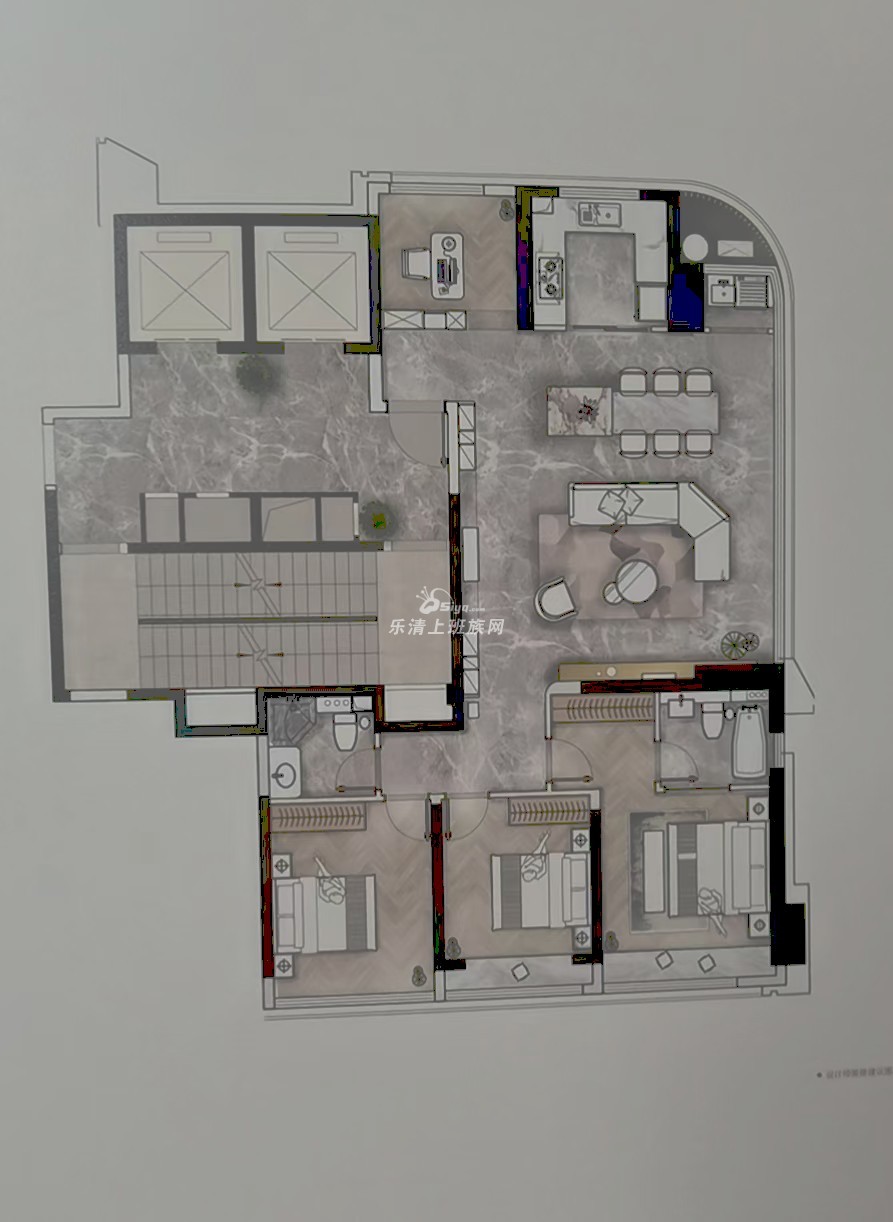
东厦.江河大境】认筹金10万建筑面积136-137平看双中央绿轴景观区间价价格1.9万~2.2

查看数: 1445 | 评论数: 0 | 收藏 0
关灯 | 提示:支持键盘翻页<-左 右->
    组图打开中,请稍候......
发布时间: 2021-12-22 16:33

正文摘要:

东厦.江河大境】认筹金10万!建筑面积136-137平看双中央绿轴景观,区间价价格1.9万~2.2万有购房需求的不要错过哦记得找我,免佣金! 联系电话17815797272

回复

手机版|小黑屋|乐清上班族网 ( 浙B2-20100310-1 )

GMT+8, 2026-4-10 09:03

Powered by Discuz! X3.3

© 2001-2017 Comsenz Inc.

快速回复 返回顶部 返回列表